- Casa
- Appartamento
- Appartamento con giardino di nuova costruzione
Appartamento con giardino di nuova costruzione
- Appartamento
Tipologia
- 139,00
m²
- 2026
Anno di costruzione
- 2
Camere da letto
- 2
Bagni
- 1
Garage
Descrizione
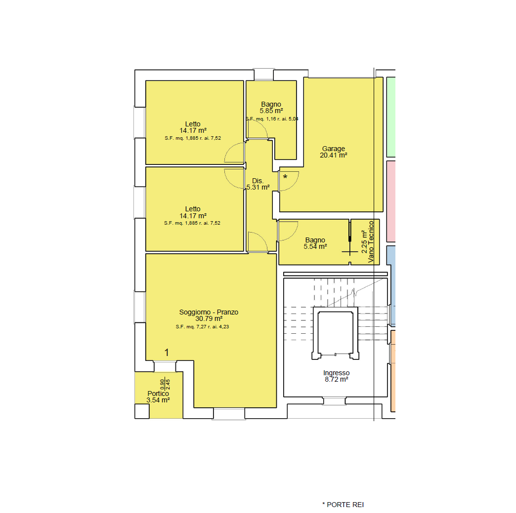
Rif. No0033 - NONANTOLA - APPARTAMENTO PIANO TERRA CON GIARDINO
Inserito in un'area residenziale in continua evoluzione, caratterizzata da nuove costruzioni, proponiamo la vendita, in contesto di piccola palazzina composta da sole 5 unità, di un appartamento posto al piano terra con ingresso indipendente e giardino privato.
Studiato per offrire uno stile contemporaneo, comfort abitativo e attenzione alla sostenibilità l’abitazione è così suddivisa: ingresso su soggiorno con angolo cottura, disimpegno notte, due camere da letto matrimoniali e due bagni.
Completa la proposta garage al piano terra collegato direttamente all'abitazione.
Consegna prevista estate 2027.
La soluzione grazie ad un ricco capitolato è pronta per essere personalizzata secondo i propri gusti ed esigenze.
Richiesta € 343.000 (garage incluso)
Per ulteriori dettagli o per prenotare una visita personalizzata senza impegno, non esitare a contattarci.
Caratteristiche
- Rif. ID No0033
- Prezzo €343.000
- Tipologia Appartamento
- Proposto In Vendita
- Superficie 139,00 m²
- Piano abitazione Terra
- Camere da letto 2
- Bagni 2
- Anno costruzione 2026
- Spese condominiali Da definire
- Autorimessa 1
- Superficie autorimessa 21,00 m²
- Consegna Prevista Estate 2027
- Riscaldamento Autonomo
- Ascensore Si
- Cucina Angolo cottura
- Arredato No
- Climatizzatore Autonomo
Classe energetica
- Classe energetica: A4
- | Classe energetica A4A4
- A3
- A2
- A1
- B
- C
- D
- E
- F
- G
Video
Potrebbero anche interessarti
A – Maisonette con giardino
Via Alcide de Gasperi, Nonantola- Maisonette
- 3 Camere da letto
- 2 Bagni
- 136,00 m²
D – Appartamento quadrilocale con terrazzo
Via Alcide de Gasperi- Appartamento
- 2 Camere da letto
- 2 Bagni
- 97 m²
Prenota una visita
Conosci il valore della tua casa. E' GRATIS!
Stai pensando di vendere o sei semplicemente curioso di conoscere il valore della tua casa?
Ottieni una valutazione professionale e senza impegno, supportata da reali analisi di mercato: veloce, accurata e 100% gratuita.






