- Appartamento
Tipologia
- 109,00
m²
- 2026
Anno di costruzione
- 2
Camere da letto
- 2
Bagni
- 1
Garage
Descrizione
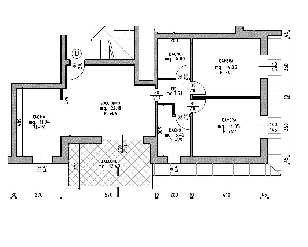
Rif. No0030 - NONANTOLA - APPARTAMENTO CON DOPPIA MATRIMONIALE E TERRAZZO
In esclusivo contesto abitativo, caratterizzato da grandi e rilassanti zone verdi proponiamo la vendita di un appartamento di nuova costruzione.
La soluzione sviluppa al piano primo con ingresso su soggiorno con cucina abitabile e terrazzo di circa 12 mq, doppio bagno e due camere da letto.
Tra le principali caratteristiche si evidenziano: edificio antisismico, impianto fotovoltaico autonomo, isolamento con blocchi isotex, predisposizione impianto aria condizionata, riscaldamento a pavimento, infissi ad elevato isolamento termico ed acustico, predisposizione allarme perimetrale e automazione carraio.
Ampia possibilità di personalizzazione di pavimenti, rivestimenti, porte interne e sanitari.
Richiesta € 268.000 (garage incluso)
Per ulteriori dettagli o per prenotare una visita personalizzata senza impegno, non esitare a contattarci.
Caratteristiche
- Rif. ID No0030
- Prezzo €268.000
- Tipologia Appartamento
- Proposto Venduto
- Superficie 109,00 m²
- Piano abitazione 1
- Camere da letto 2
- Bagni 2
- Anno costruzione 2026
- Autorimessa 1
- Superficie autorimessa 17
- Consegna Prevista Estate 2027
- Riscaldamento Autonomo, A pavimento
- Ascensore Si
- Cucina Abitabile
- Arredato No
Scopri altri angoli dell'immobile
Classe energetica
- Classe energetica: A4
- | Classe energetica A4A4
- A3
- A2
- A1
- B
- C
- D
- E
- F
- G
VIDEO
Potrebbero anche interessarti
E – Appartamento quadrilocale con doppia matrimoniale e terrazzo
Via Alcide de Gasperi- Appartamento
- 2 Camere da letto
- 2 Bagni
- 99 m²
Ultima disponibilità! Bilocale di nuova costruzione
Via Carlo Cattaneo, Nonantola, MO- Appartamento
- 1 Camera da letto
- 1 Bagno
- 64 m²
Prenota una visita
Conosci il valore della tua casa. E' GRATIS!
Stai pensando di vendere o sei semplicemente curioso di conoscere il valore della tua casa?
Ottieni una valutazione professionale e senza impegno, supportata da reali analisi di mercato: veloce, accurata e 100% gratuita.








